GreenPark Village 碧湖庄园999年 | 2021年2—3月
< >
£29万

人民币:250万

使用面积:
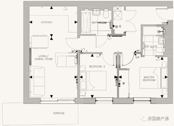
主力户型:一室、二室、三室公寓和三室、四室联排别墅
房屋产权:999年
交房时间:2021年2—3月
与华为为邻,平均收益率4.4%,26分钟抵市中心
预约看房
18621797669
项目信息
项目地址Reading, Berkshire, RG2


 
起售价29万镑
 
服务费:低至1.93/平方英尺
 
预计竣工日期202123
 
产权999



项目亮点
步行即达华为总部


名企云集、人才扎堆的投资热区
传平均租金收益率4.4%
26分钟到达伦敦市中心
坐拥女王线红利
尽享卓越教育资源
195英亩依湖傍林胜景
丰富户型可选29万镑起售



项目交通
碧湖庄园坐落在有“英国硅谷”之誉的科技重镇——伦敦以西约60公里的雷丁(Reading)。

66892d7b47b0d760b2e10fa5bab0de4.jpg

3c8e888aa670c279f804bb13234f963.jpg

 
碧湖庄园
顶尖名企齐聚
精英人才扎堆的投资热区

李嘉诚有句广为人知的名言:决定房地产价值的因素,第一是地段,第二是地段,第三还是地段。
 
这句话套用在一众名企趋之若鹜的雷丁身上再合适不过——从这里出发,20来分钟即达伦敦市中心,30来分钟瞬抵希思罗机场,联通全世界。
 

ca242ffb4b044d652e749faf0cfca17.jpg

雷丁街景
 
如此绝佳区位,吸引了全球前30大品牌中的13家驻扎在雷丁,国内外投资深耕于此20多年,为雷丁赢得了无数赞誉——
 
安永预测:2019—2021三年间,雷丁将成为全英经济增长最快的地区;
Tech Nation数据显示:雷丁坐拥全英最高且超出平均水平八倍的科技企业密集度;
BBC报道:雷丁的平均工资全英排名第二,仅次于伦敦
……
 

06ff63c94810557c5d9043ab9add0f9.jpg

雷丁街景
 
作为全英首屈一指的科技重镇,雷丁云集了微软、甲骨文、特斯拉、华为等世界龙头企业总部;
 
还有更多走在领域最前沿的创业公司:如深耕人工智能的CloudFactory和致力于大数据的Splunk等,都选择在雷丁孵化远大前程。
 
如今,科技企业每年为雷丁贡献的年度收益已达135亿镑。
 

0756a3e808b20cec85a81296bb370ac.jpg

微软雷丁总部
 
而百事可乐、思科、日立、Symantec、保诚、沃达丰、诺基亚、BBC、因特尔、维珍、HSBC、VISA和SSE等名企也对雷丁情有独钟。
 
根据当地政府的规划,到2050年,雷丁将成为一座智能的可持续化城市,以绿色科技、企业文化和出众技术专长为内核,同时坐拥多样性文化资产。
 

d5095f3f2e445ec14eac9b42246c523.jpg

齐聚雷丁的部分名企
 
目前,有超29,000名来自世界各地的精英在雷丁工作,其中40%活跃于最前沿的数字行业,其他还包括能源、制药,以及在当地已蓬勃发展多年的金融服务业。
 
表现亮眼的长期经济增长,让这座低调小城淋漓尽致地诠释了经济学家的集聚理论——
成功孕育成功,硕果累累的雷丁不断吸引高素质人才涌入。
 

0be08f55e1b76294a02db11dbb0fadb.jpg

雷丁华为总部
 
强有力的就业市场推动了雷丁长期旺盛的租赁需求——
 
据雷丁最大租赁机构Haslams的报告,雷丁的房屋空置最长也不超过一周。只要地段和价格合适,房子几天内便能出租。
 
2019—2023五年间,雷丁房价将上涨13.6%,租金将提升13.1%,超越英格兰东南地区的整体增幅。
 
当前,雷丁的租金收益率平均为4.4%,远高于伦敦的3.5%。
 

9060b04926118a9201a32e80f4ea65e.jpg

碧湖庄园外景
 
所谓“火车一响,黄金万两”——
 
自伦敦最受瞩目的横贯城铁——女王线开建以来,沿线周边整体房价涨幅约31%,,而平均租金涨幅则是2012年以来伦敦的2倍多!
 
雷丁是女王线的西端起点站,通车后势必进一步助推雷丁的强势经济地位。

429f1eab514682c0a7cc98fd984625a.jpg


周边配套

区位信息

得天独厚区位

26分钟即达伦敦市中心

从碧湖庄园步行,即可达华为总部所在的Green Park商业园,内附优质托儿所、设施一流的健身中心、餐厅、泳池和零售商铺,每年都会举办许多精彩活动。
 

6fd9c69ec53177fb6575cbc4a9beda8.jpg

 
而从碧湖庄园旁即将通车的Green Park火车站出发,至雷丁市中心的雷丁火车站只需6分钟,还能直达布里斯托、牛津、伯明翰、南安普顿等城市。
 
而在雷丁火车站乘车,21分钟到达伦敦市中心的帕丁顿车站(Paddington)——微软、达沃丰、VISA等名企,和赫赫有名的高等学府帝国理工所在地。
 

362342a84235d0d0fff80ec87353839.jpg

 
待女王线通车后,49分钟即达托特纳姆宫路(Tottenham Court Road)——谷歌、Facebook等名企,和伦敦顶尖高等学府UCL所在地。
 

242084f839c96326f3cb8238abbe793.jpg

UCL
 
除此之外,碧湖庄园也尽享雷丁的卓越教育资源——
 
全英最顶尖的两所私立学校——雷丁男校(Reading School for Boys)和肯德里克女校(Kendrick School for Girls),皆只有十来分钟车程。
 
除此之外,周边还有Bradfeld College、Reading Blue Coat School、The Abbey、Queen Anne’s and Shiplake College等同样获誉无数的私立学校。
 
与此同时,雷丁也汇聚了众多英国教育标准局评级抢眼的公立中小学。
 
由于汇聚了全球精英,雷丁当地学校的学生群体非常多元化,校园里使用着多达129种语言。
 
其学术表现也非常傲人,至少连续四年获得全英最好的A-level(即英国高考)成绩。
 
而距项目11分钟车程,便是世界顶尖高等学府——拥有超15,000名学生的雷丁大学(University of Reading)。
 
而37分钟车程,便是英国为数不多获AMBA、EQUIS、AACSB三重认证的国际知名商学院——Henley Business School。
 

a14fb91207c9425844a8ab17e8ef496.jpg



付款流程
付款流程
1.  定金;通过Help to Buy计划购房为500镑,其他为1,000
2.  21天内交换合同时支付10%总房款;
3.  交换合同6个月后支付5%总房款;
4.  完工交房时支付余下房款。
X
姓名:
手机: